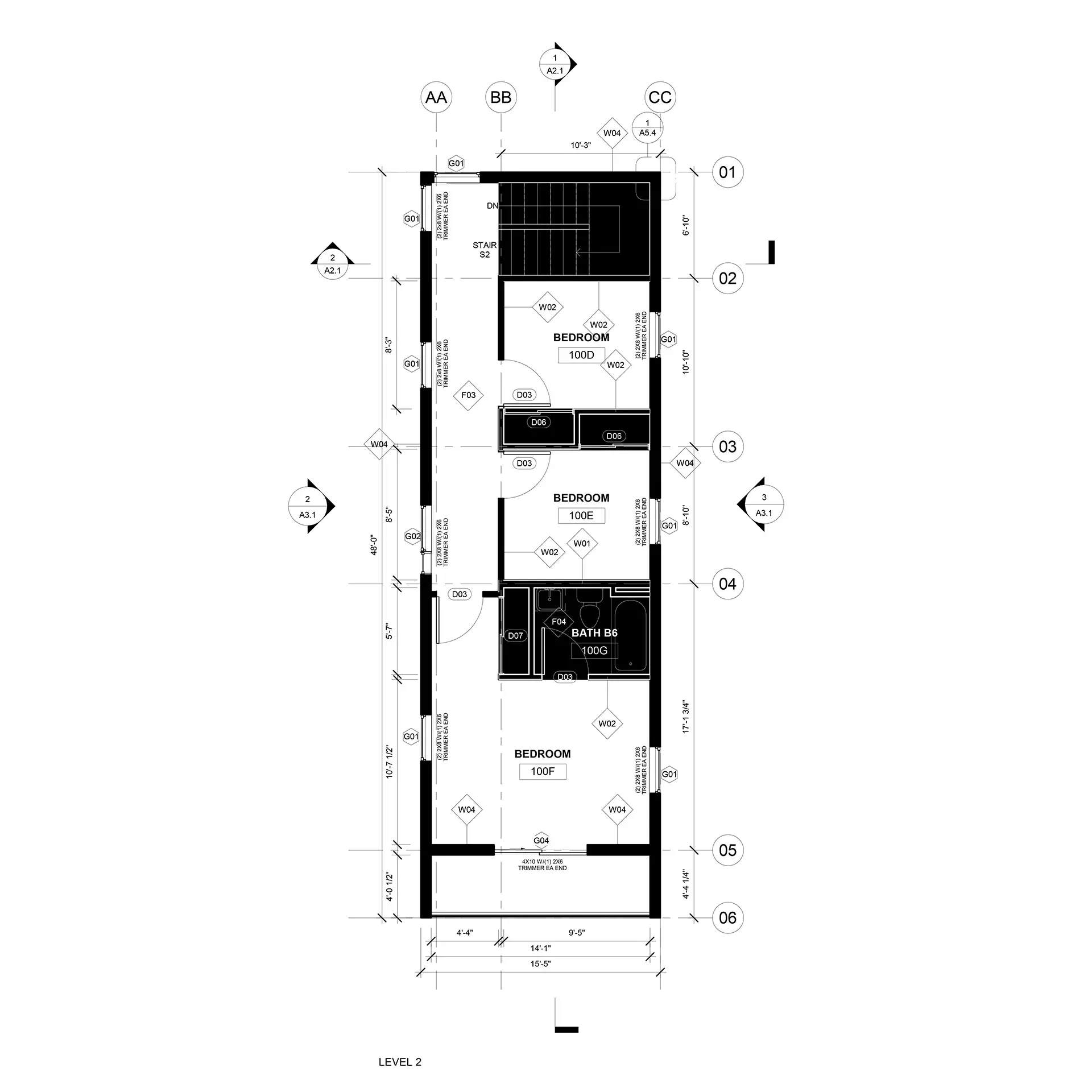
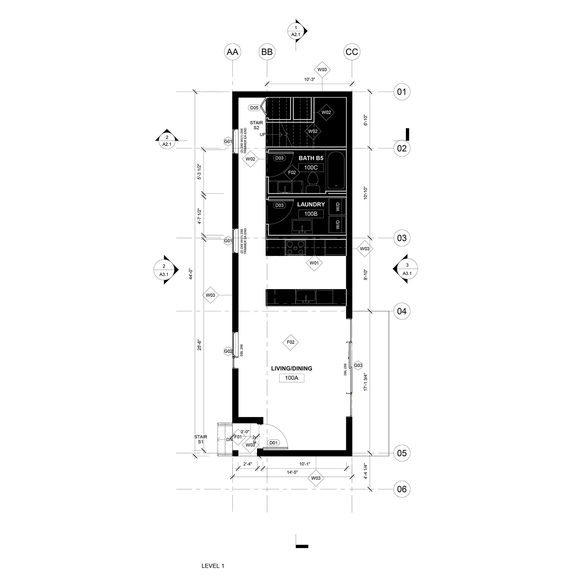
The Portland Slide House densifies a residential lot with an existing house by placing a Pre-fabricated 14 foot wide module at the front of the site. This building type can be used as an alternative to ADUs by infilling front yards in suburban neighborhoods while creating a landscaped courtyard between the two structures.

Previous
Previous

Mosswood ADU

Next
Next

UC Botanical Garden Footbridge